
Fertigteilbau, serielles Bauen, Bauwerksbau
Deutschlands größtes Wohnbauprojekt aus Holzmodulen in Bad Cannstatt
Mit den Attributen „energieeffizient, ressourcenschonend, zeitsparend, recycelbar“ ist das Wohnbauprojekt „Quartier am Prießnitzweg“ bis Ende 2023 im Herzen von Stuttgarts altehrwürdigem Stadtteil Bad Cannstatt entstanden – sogar mit überpünktlicher Übergabe an den Bauherren. Der Traum eines jeden Projektentwicklers muss doch einen Haken haben. Haben die in Schwaben etwa beim Arbeitsschutz gespart? In gewisser Weise ja, aber anders als gedacht.
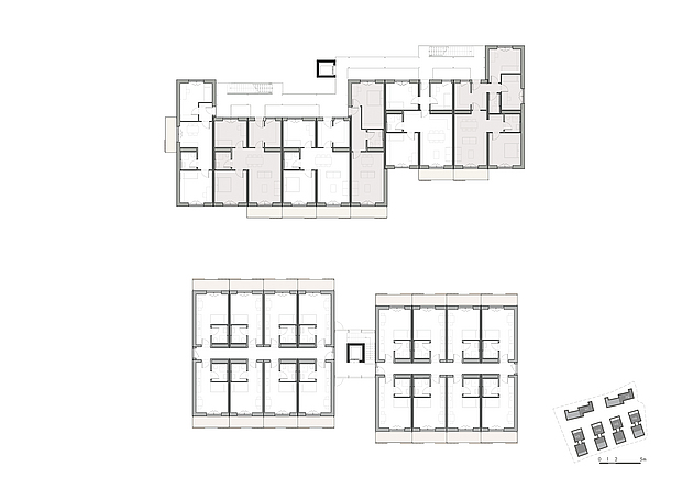
In Stuttgart-Bad Cannstatt entstand im Auftrag der Stuttgarter Wohnungs- und Städtebaugesellschaft (SWSG) bis Ende 2023 das Quartier am Prießnitzweg – eines der größten Wohnprojekte in Holzmodulbauweise deutschlandweit. Es besteht aus insgesamt sechs Gebäuden, die jeweils aus einzelnen Holzmodulen zusammengesetzt sind. Auf vier bzw. fünf Geschossen liegen je nach Konfiguration der auf einer Etage kombinierten Module in großer Mehrzahl Ein-, aber auch Zwei-, Drei- oder Vier-Zimmer-Wohnungen mit Wohnflächen zwischen 23 m2 bis zu 89 m2. Die reine Nettowohnfläche beträgt 10.057 m2, die gesamte Bruttogeschossfläche erstreckt sich auf 24.478 m2.

Durch Kombination der Modultypen konnten die Wohnungen auf den Bedarf des Bauherrn zugeschnitten werden.
Arbeitsteilung bei Modulbau und konventionellen Bauabschnitten
Bei dem Bauvorhaben handelte es sich bis zum Zeitpunkt der Vergabe 2019 um den bislang größten Auftrag nach dem Rahmenvertrag des Spitzenverbandes der Wohnungswirtschaft GdW. Der Verband hatte 2018 für seine Mitgliedsunternehmen, nach vorausgegangenem Wettbewerb, eine Rahmenvereinbarung für mehrgeschossige Wohnbauten in serieller und modularer Bauweise geschlossen. AH Aktiv-Haus gehört zu den ausgewählten Vertragspartnern und wurde von der SWSG beauftragt, die Wohnanlage in Bad Cannstatt nach seinem Modulkonzept zu planen und zu bauen. Das Unternehmen wurde von dem Architekten und Bauingenieur Prof. Werner Sobek mit dem Ziel gegründet, nachhaltige serielle Wohnungsbaulösungen zu entwickeln und anzubieten.
Der Newsletter der BG BAU
Hier erhalten Sie alle wichtigen Meldungen und aktuelle Informationen zum Thema Arbeitsschutz per E-Mail – so etwa auch Hinweise zu neuen Arbeitsschutzprämien und Seminarangeboten.
Sie möchten keine Ausgabe der BauPortal verpassen? Klicken Sie einfach das entsprechende Kästchen in den Profileinstellungen an. Den Link zum Profil finden Sie am Ende jedes Newsletters oder direkt nach der Anmeldung.
Für die Tiefbauarbeiten und andere feststehende Gebäudeteile wie die Treppenhäuser und die Tiefgarage holten sich die Modulbau-Spezialisten mit WOLFF+MÜLLER einen kompetenten Partner an Bord. Das Stuttgarter Traditionsunternehmen brachte sowohl für die Endmontage der modularen Elemente als auch die Bauleitung die nötigen Kapazitäten mit und ist als Teilhaber bei AH Aktiv-Haus eng mit dem Unternehmen verzahnt. In der neugebildeten Arbeitsgemeinschaft übernahm AH Aktiv-Haus die Projektplanung inklusive der Kommunikation mit dem Bauherrn sowie vor allem die Konzeption und Ausstattung der Module. Die Partner auf Seiten von WOLFF+MÜLLER sorgten für die Erschließung und die Fundamente, errichteten die Tiefgarage, die Aufzüge und installierten die Gebäudeausrüstung.
Planung und Projektentwicklung im BIM-Modell
Der Neubau wurde vollständig mit der BIM-Methode (Building Information Modeling) realisiert. Gerade für die angesprochene Arbeitsteilung zwischen den Planern von AH Aktiv-Haus, den mit den Tief- und Ausbau-Arbeiten betrauten Partnern und dem mit der Modulausführung beauftragten Hersteller hatte das viele Vorteile. Alle Informationen zum Bauprojekt waren von Beginn an in einem virtuellen Modell hinterlegt, auf das alle Planungs- und Baubeteiligten jederzeit zugreifen konnten.
Damit begünstigte BIM die Abstimmung im Projektteam erheblich; das gilt auch für den Austausch mit dem Bauherrn, etwa bei den Bemusterungsverfahren und Baustandsmeldungen. Auch auf den Arbeitsschutz lässt sich das ausdehnen. Allein die örtlich und zeitlich aufgeteilte Ausführungsplanung über den Tiefbau, die Modulerstellung bis zur Endmontage und den Innenausbau sowie die dabei klar definierten Verantwortlichkeiten erleichterten die Gefährdungsanalyse und die Wahl geeigneter Schutzmaßnahmen.Nicht zuletzt beschleunigt der unmittelbare Zugriff auf den Informationspool im BIM-Modell sowohl die Planung als auch den Kommunikationsfluss. Das ist auch ein Grund, der zur erheblichen Zeitersparnis gegenüber vergleichbaren Bauprojekten, die in konventioneller Bauweise zeitlich linear errichtet werden, beiträgt.
Deutschlands größtes Wohnbauprojekt aus Holzmodulen: Das energieautarke Plusenergie-Quartier P18
© Aktiv-Haus
Terminsicherheit senkt Kosten
Während in Stuttgart die Gründungs- und Tiefbauarbeiten begannen, lief parallel die serielle Modulfertigung im Werk in Polen an. Zu dem Zeitpunkt, als der Unterbau der ersten drei von insgesamt sechs Mehrfamilienkomplexe fertiggestellt war, trafen die Module aus dem polnischen Bielsk Podlaski in Bad Cannstatt ein und konnten ohne Verzug zeitnah, wie Bausteine auf betonierten Unterbau aufgeschichtet, miteinander verbunden werden.
So entstanden insgesamt 330 Wohnungen für die Beschäftigten des auf der gegenüberliegenden Straßenseite gelegenen Klinikums Stuttgart. Und das in vergleichsweise kurzer Zeit: „Wir konnten die ersten drei Wohngebäude in nur sechs Monaten von der Anlieferung des ersten Moduls bis zur Fertigstellung errichten“, sagt Thomas Schmierer, Projektleiter beim Bauunternehmen WOLFF & MÜLLER. Von Beginn der Planung 2020 bis zur vollständigen Fertigstellung Ende 2023 verging ein Zeitraum von gerade mal 40 Monaten. Würde ein Bauprojekt dieser Größenordnung als konventioneller Stahlbetonbau umgesetzt werden, wäre die Bauzeit einige Monate, wenn nicht um mehr als ein Jahr länger. Doch bei diesem Bau ging es nicht ausschließlich um Geschwindigkeit.
Triple Zero-Prinzip
Zero Fossil Energy | Zero Emission | Zero Waste |
---|---|---|
Ein Gebäude verbraucht nicht mehr Energie, | Es erzeugt keine schädlichen | Alle Bauteile können vollständig in |

Die nach Süden ausgerichteten Giebelwände wurden jeweils mit PV-Paneelen ausgestattet.
Klimaneutral und materialsparend
Die Entwicklungsvorgabe für das gesamte Bauvorhaben wie auch der einzelnen Module basierte auf Werner Sobeks „Triple Zero“-Vision: Den marketinggerecht formulierten Anspruch übersetzten die Planerinnen und Planer in die Zielsetzung, den Wohnkomplex mit nachwachsenden Rohstoffen zu errichten. Vor allem wollten sie den vollständigen Bauprozess und auch die nachfolgende Nutzung stringent auf CO2-Einsparung trimmen. Mit dem einkalkulierten Investitionsvolumen und den erwartbaren Fördermitteln wurde das Quartier am Prießnitzweg nach der Energieeinsparverordnung (EnEV2016) als Plusenergie-Effizienzhaus projektiert und ist damit energetisch günstiger als der Energieeffizienzstandard 40 Plus.

Die jährlichen CO2-Emissionen von unterschiedlichen energetischen Gebäudetypen im Vergleich zu den Modulbauten der Plusenergie in Bad Cannstatt.
Das Projekt zeigt, wie ressourcenschonendes und energieeffizientes Bauen möglich ist: Durch die Vorfertigung der Module in Holzständerbauweise wurden gegenüber dem konventionellen Wohnungsbau 75 % Materialmasse eingespart. Auf das Gesamtvolumen des Bauprojekts bezogen bedeutet das in Zahlen, dass beispielsweise 5.500 m3 Beton mit einem CO2-Äquivalent von 1.815 t eingespart werden konnten – pro Modul etwa 26 m3. Der Materialmix besitzt ökologische wie ökonomische Vorzüge:
Gebäuderessourcen*
- Mineralwolle macht ca. 60 % der verwendeten Materialien aus, mehr als 23 % sind aus Holz, nur 1,5 % mineralische Baustoffe sowie ca. 2 % gemischte Materialien wurden verbaut
- 62 % der Bauteilschichten haben eine Lebensdauer von mehr als 50 Jahren
- 66 % aller Bauteile lassen sich zerstörungsfrei und sortenrein zurückbauen
- Fast 83 % lassen sich nach dem Rückbau unmittelbar wieder verbauen, der Rest fast vollständig recyceln
* alle Angaben beziehen sich auf das Volumen
Die Module bestehen hauptsächlich aus dem nachwachsenden Rohstoff Holz und lassen sich am Ende des Gebäude-Lebenszyklus wieder vollständig in technische oder biologische Kreisläufe zurückführen. Das gilt auch für die Fassadenhölzer aus Lärche, die technisch vorvergraut sowie geölt und damit für lange Zeit wartungsfrei sind. Vor allem sind der Aufbau und die Zusammenstellung der Baustoffe für die Energiebilanz vorteilhaft. Tatsächlich erzeugt P18 als Plus-Energie- Quartier im Jahresmittel mehr Energie aus nachhaltigen Quellen, als es selbst benötigt. Und die Planer setzen großes Vertrauen in ihr Konzept, einen Fernwärmeanschluss besitzt der modulare Gebäudekomplex erst gar nicht.

Die Elemente der Gebäudeausrüstung, die den Gebäudekomplex zum Plus-Energie-Quartier werden lassen.
Damit die Bauten den energetischen Standard eines Plus-Energie-Quartiers erfüllen, wurde jedes Gebäude mit einer Abluft-Wärmepumpe zur Wärmerückgewinnung und einer Sole-Wärmepumpe ausgerüstet. Auf den Dächern sowie Balkondächern sind Photovoltaikmodule und Solar-Hybridkollektoren zur Stromgewinnung und Wassererwärmung installiert. Nach Süden ausgerichtete Hauswände sind zusätzlich mit fassadenintegrierten PV-Modulen bestückt. Mit Batteriespeichern lässt sich so im Jahresmittel ein Energieüberschuss aus regenerativen Energiequellen erzeugen.
Modulentwicklung und -fertigung
Für die Wohnungen in Bad Cannstatt konnte AH Aktiv-Haus auf einen inhouse entwickelten Modultyp zurückgreifen. Sie haben sich mittlerweile in mehreren vergleichbaren Bauprojekten bewährt und verfügen über die vorgegebenen ökologischen und energetischen Eigenschaften. Der Vorfertigungsgrad von annähernd 95 % erspart den zeit- und kostenaufwendigen Innenausbau fast gänzlich. Die Fertigung erfolgt jeweils parallel zur Baufelderschließung und den Fundamentarbeiten. Der Bauherr kann bereits mit Erteilung der Baugenehmigung die Ausstattung bestimmen und erhält dafür eine Festpreisgarantie. Die SWSG hatte sich mit Blick auf das in ihren Verantwortungsbereich fallende Immobilienmanagement für eine Vollausstattung abgestimmt auf den eigenen Wohnungsbestand entschieden und eine Produktliste vorgegeben. Die Module wurden ab Werk vollständig mit Steckdosen, Schaltern, Lampen bis hin zu Einbauküchen und Toilettenbürsten ausgerüstet. „Modulbauten sind auch deshalb attraktiv, weil sie sich wie Autos konfigurieren lassen. Auftraggeber können aus einer Vielzahl unterschiedlicher Modultypen, Fassaden, Materialien, Farben und Ausstattungen die jeweils passende Ausstattung wählen“, erklärt Hubert Nopper, Geschäftsführer der AH Aktiv-Haus GmbH.

Auch die Küche wird ab Werk eingebaut. Nach der Endmontage sind nur noch die Fugen an den Kopplungsstellen zweier Module (im Bild der Durchgangsbereich links neben der Tür) zu schließen.
Mit einer Grundfläche von 16 m x 4,5 m, einer Höhe von 3,2 m und je einem Gewicht von bis zu 25 t richten sich die Abmaße nach den Kapazitäten der Fertigungsstraße sowie der Transportfahrzeuge. Das Gewicht ist abhängig vom Wohnungstyp und den vorgesehenen Räumen, wobei Bäder und Küchen das Gesamtgewicht erhöhen. Die serielle Vorfertigung startet auf einer Montagelinie zunächst mit der Herstellung der Modulhülle aus Bodenplatte, dem Holzständergerüst inklusive Dämmung und den tragenden Seitenwänden.

Alle Module sind in Holzständer-Bauweise aus recycelfähigen, weitestgehend nachwachsenden Materialien aufgebaut.
Nach Abschluss der Zimmererarbeiten erfolgen die Verlegung der Elektrik und sowie die Heizungs- und Sanitärinstallation. Durch die festgelegten Montagestationen kommen sich die verschiedenen Gewerke nicht in die Quere. Für die Qualität, Fertigungszeit und die Arbeitsbedingungen, auch den Arbeitsschutz, sind das im Vergleich zur Ausführung auf der Baustelle hervorragende Rahmenbedingungen. Die Kooperation mit dem Modulhersteller beinhaltet auch ein schlüssiges Arbeitsschutzkonzept, zu dem Montagetische, PSA und eine absturzsichere Deckenmontage gehören.
Auf den Punkt: die Endmontage
Die mehr als 1.000 Kilometer weite Überführung der schlüsselfertigen Module per Sattelschlepper nach Stuttgart benötigte einen gut getimten logistischen Vorlauf. Die für Schwerlasttransporte dieser Art notwendigen Fahrgenehmigungen müssen eingeholt, Oberleitungen angehoben, Brückenüberfahrten und Tunneldurchfahrten geplant und koordiniert werden. Schon allein deshalb erfolgt der Transport ausschließlich in der Nacht. Dazu kommt die Innenstadtlage der Baustelle. Das heißt, die Lagerkapazitäten für Bauteile dieser Dimension sind stark begrenzt. Kein Wunder, dass die Endmontage im Akkord erfolgen musste. Dank des Baukastensystems gelang das mit bemerkenswerter Geschwindigkeit. Für jedes Wohnhaus hatte WOLFF+MÜLLER das Treppenhaus mit Fahrstuhlschacht aus Ortbeton errichtet und rechts und links davon zwei Bodenplatten mit Medienanschlüssen sowie jeweils vier Betonsockeln erstellt. Darauf wurden im 30-Minuten-Takt Modul für Modul von den einrollenden Sattelschleppern per Kran geschossweise aufeinandergestapelt und festgekoppelt.
Innerhalb von fünf Tagen konnte so jeweils ein kompletter Wohnhaustrakt aufgestellt werden. Insgesamt wurden von der Baufeldübergabe bis zur Fertigstellung nach diesem Muster 212 Module für 330 Wohneinheiten verbaut – und das innerhalb von zwölf Monaten. Auch der Arbeitsschutz musste auf dieses Tempo getimt werden. Die Module wurden bereits ab Werk in Polen mit Gurten versehen, um das schnelle und exakte Anschlagen vom Modul am Kran zu ermöglichen. Von Geschoss zu Geschoss wurde das umlaufende Schutzgerüst zwischen den Montagegängen höhergebaut, um einen lückenlosen Absturzschutz zu garantieren.
Die Gebäudeausrüstung, vor allem die PV-Fassade auf den südwärts gerichteten Giebelwänden sowie die Installation der Solar- Hybridkollektoren auf den Flachdächern, konnte anschließend vorgenommen werden. Die vorgestellten, aus Stellelementen gefertigten Balkone vervollständigen die Häuserfronten und bieten einen architektonisch gelungenen Kontrast zu den Holzfassaden der Module. Auch aus diesem Grund wurde das Modulbauprojekt in Bad Cannstatt für den Bundespreis Ecodesign nominiert und mit dem BIM Award und dem Immobilien Award ausgezeichnet.
Vergleichbare Wohnhäuser realisiert AH Aktiv-Haus derzeit in Potsdam, Kriftel sowie Künzelsau und zeigt damit, dass diese Art der Modulbauweise auf dem Markt angenommen wird.
Autor
Ausgabe
BauPortal 2|2024
Das könnte Sie auch interessieren

Holzbau
Holzmodulbau mit Gipsfaserplatten
Modernes Brandschutzkonzept bei der Wandbekleidung ermöglichte Fünfgeschosser in Holzbauweise.

Energetische Sanierung
Serielles Sanieren als Lösung für die Dekarbonisierung von Wohngebäuden
Ein Joint Venture aus einem Bau- und einem Immobilienunternehmen saniert mit selbst entwickelter Prozesslösung Wohngebäude in Mönchengladbach.

Baustelle im Fokus, Sanierung und Bauwerksunterhalt
Serielle Sanierung in Greiz
Die Greizer Wohnungsgenossenschaft modernisiert erstmals in Ostdeutschland ein Wohngebäude nach dem niederländischen „Energiesprong-Prinzip“: ein Projektbericht.