Der von Ihnen verwendete Browser wird von der BG BAU nicht mehr unterstützt. Es kann daher auf der BG BAU Website zu Darstellungsfehlern kommen.

Detailaufnahme einer Fassade, an der historische Ornamente angebracht werden.
Wiederherstellung der historischen Ornamente | Bild: cubus plan gmbh

Sanierung

Denkmalgerechte Sanierung der Mannschaftsgebäude im INFA-Quartier Wünsdorf

Auf dem Gelände der ehemaligen Infanterieschießschule in Wünsdorf werden seit 2021 die beiden denkmalgeschützten Mannschaftsgebäude behutsam saniert und zu Wohngebäuden umgebaut. Bei der Sanierung stehen ein material- und ressourcenschonender Umgang mit dem Bestand und die Errichtung einer nachhaltigen Energieversorgung im Vordergrund.
 

Wünsdorf-Zossen ist geprägt von militärischer Geschichte. 1911 begann die Errichtung der einstigen Infanterieschule. Die Reichswehr war hier angesiedelt, später die Nationalsozialisten, danach die sowjetischen Truppen. Seit 1994 stand die ehemalige Infanterieschule leer, sodass einzelne Gebäude stark verfallen waren und sich die Natur viele Bereiche des Geländes zurückerobert hatte.
 

Blick auf die Vorderfront des Gebäudes mit kaputten Fenstern und einer teilweise zerstörten Fassade.
Mannschaftsgebäude Wünsdorf vor der Sanierung
Bild: cubus plan gmbh


Die meisten und gestalterisch herausragendsten Bauten der Anlage entstanden kurz vor Beginn des Ersten Weltkriegs in Form einer großzügigen, axialsymmetrisch klar geordneten Anlage durch den Berliner Architekten Ernst Richter. In den 1930er-Jahren wurden weitere Gebäude errichtet. Heute gibt es auf dem 11,4 ha großen, mit reichlich Bäumen ausgestattetem Areal 18 Bauten – von zwei Torhäuschen über mehrere Mannschaftsgebäude und Werkstätten bis hin zu einem kleinen Theater. Zwei repräsentative, viergeschossige Mannschaftsgebäude bilden den baulichen Kern der Anlage und sind Ausgangspunkt der laufenden, denkmalgerechten Revitalisierung zum „INFA-Quartier“ durch das Berliner Büro cubus plan.
 

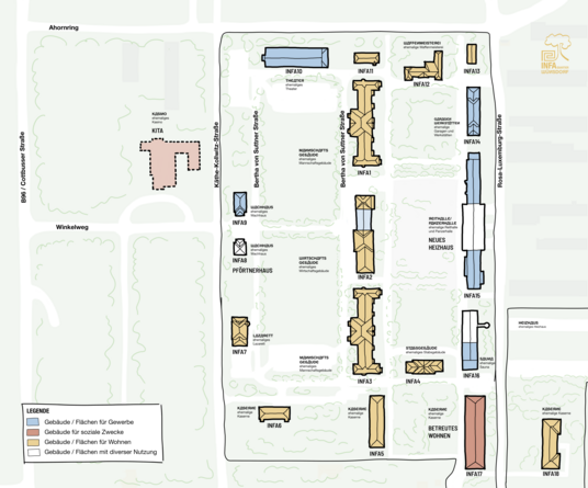
Das INFA-Quartier

Das Wohnquartier wird ca. 225 Wohnungen und diverse Gebäude und Gebäudeflächen für gewerbliche Nutzungen mit kulturellem und sozialem Zweck umfassen. Kurze Wege und vielfältige Nutzungen sollen das Quartier prägen, so z. B. eine städtische Kita, ein Café und Werkstätten.
 

Lageplan Gebäude INFA-Quartier.
Lageplan der Gebäudes des INFA-Quartiers
Bild: cubus plan gmbh

 

Umplanung des Areals

Um das geschichtliche und kulturelle Erbe dieses Ortes zu sichern, aber auch, um den dringenden Wohnungsbedarf im weiteren Einzugsgebiet von Berlin abzudecken, hat die Baltic Memorial OHG als Eigentümerin des Areals entschieden, das Gelände als INFA-Quartier zu entwickeln – und beide Mannschaftsgebäude und das umgebende Ensemble zu erhalten und umzuplanen. Somit wird der Bestand wieder genutzt und reduziert so den Ressourcenverbrauch und die Neuversiegelung von Flächen im Vergleich zu Neubauten erheblich.
 

Der Newsletter der BG BAU

Hier erhalten Sie alle wichtigen Meldungen und aktuelle Informationen zum Thema Arbeitsschutz per E-Mail – so etwa auch Hinweise zu neuen Arbeitsschutzprämien und Seminarangeboten.

Sie möchten keine Ausgabe der BauPortal verpassen? Klicken Sie einfach das entsprechende Kästchen in den Profileinstellungen an. Den Link zum Profil finden Sie am Ende jedes Newsletters oder direkt nach der Anmeldung.

Jetzt abonnieren!

 

Die Herausforderung der Umplanung von einem Mannschaftsgebäude zu einem Wohngebäude bestand darin, möglichst viel Wohnfläche entstehen zu lassen, die ausreichend belichtet ist, und dabei verschiedene große Wohnungen und unterschiedliche Wohnungstypen für diverse Lebenskonzepte anzubieten. Gleichzeitig sollte das Denkmal behutsam behandelt und möglichst wenig vom Bestand abgebrochen werden.

Blick auf die sanierte Vorderfront mit heller Fassade und neuen Fenstern.
Mannschaftsgebäude Wünsdorf nach der Sanierung
Bild: cubus plan gmbh

 

Mannschaftsgebäude wird Wohngebäude

Die beiden ehemaligen Mannschaftsgebäude sind viergeschossige, symmetrisch aufgebaute Putzbauten mit Mansarddächern, welche durch Risalite aufgelockert werden. Sie stellen die höchsten Baukörper in diesem Ensemble dar und werden komplett zu Wohngebäuden umgebaut. Relevante historische Elemente bleiben weitestgehend erhalten oder werden unter Berücksichtigung der restauratorischen Befunde wiederhergestellt. Hier sind vor allem besondere Gestaltungselemente wie Risalite, Dreiecks- und Segmentbogengiebel oder Kreuzstockfenster zu erwähnen. Zur ausreichenden Belichtung der Wohnungen werden ehemalige Erschließungsgänge aufgelöst und in die Wohnungsgrundrisse integriert. Durch den Einbau eines Aufzugs sind die Gebäude teilweise barrierefrei nutzbar.

Erster Meilenstein geschafft

Das erste Wohngebäude (ehemaliges Mannschaftsgebäude I, INFA 1) wurde Ende 2023 denkmalgerecht umgebaut und saniert. Insgesamt sind 36 Wohneinheiten, verteilt auf vier Etagen, entstanden. Jedes Geschoss bietet verschiedene Wohnungstypen inklusive drei barrierefreier Wohnungen, die über einen Fahrstuhl zugänglich sind. Die einst langen und breiten Flure mit ihren historischen Bögen wurden in die Wohnungen integriert. Auch in den neuen Hausfluren wurden diese Bögen sichtbar gelassen.
 

Herausforderungen der denkmalgerechten Sanierung

Richtungsweisend für die Planung und Ausführung war es, den Bestand und die Bauteile bestmöglich zu erhalten – getreu der Devise „Umbau statt Neubau“ – und bei der Materialauswahl auf Energie- und Ressourcenschonung zu achten. Darüber hinaus sollte eine auf das Bestandsobjekt zugeschnittene energetische Sanierung umgesetzt werden. Vor dem Start der Sanierungsarbeiten wurde aufgrund der historischen Nutzung des Areals auf dem gesamten Gelände eine Kampfmittelerkundung durchgeführt. In den Gebäuden fand zudem noch eine Gefahrstofferkundung statt – vor allem die Belastung durch PAK (Polycyclische aromatische Kohlenwasserstoffe, die z. B. in Klebstoffen der Fußböden zu finden sind) sollte vor der Sanierung erfasst werden, damit gegebenenfalls entsprechende Schutzmaßnahmen bei der Sanierung ergriffen werden können. Glücklicherweise gab es keine PAK, allgemein waren die Gebäude überraschend schadstoffarm.

Person mit Vollschutzkleidung spritzt in einem Kellerraum aus einer Pumpe etwas an die Decke.
Spritzarbeiten unter Vollschutz
Bild: Werk 2 Raumgestaltung GmbH

Abbruch- und Rückbauarbeiten

Im Rahmen der geplanten Maßnahmen mussten Fenster und Türen, Innenwände (tragend sowie nicht tragend), Dacheindeckung und teilw. Dachkonstruktion zurückgebaut und ertüchtigt sowie der Außen- und Innenputz abgetragen werden. Das Bestandsgebäude wurde also entkernt und ein Rohbauzustand hergestellt. Aufwendig war auch die Errichtung der Fahrstuhlunterfahrt, da im Gebäude ein Bodenaustausch durchgeführt werden musste und hierbei die Fundamente unterfangen werden mussten. Damit das Gebäude während dieser Maßnahme nicht absackt und die Beschäftigten keinem Risiko ausgesetzt werden, wurden die Fundamente immer nur gegenüberliegend und auf einem Streifen von 1,25 m Breite untergraben und mit Quellbeton unterfangen. Das war umfangreiche und zeitintensive Handarbeit.

Staubschutz

Um Staubemissionen zu vermeiden, wurden während der Abbrucharbeiten PSA getragen. Eine Besonderheit war auf dieser Baustelle, dass eine durchgehende Reinigung der Baustelle organisiert wurde, um insbesondere Unfällen durch schlechte Sicht oder verdeckte Gefahren vorzubeugen. Dazu wurden einzelne Abschnitte festgelegt, in welchen die entsprechenden Arbeiten getrennt voneinander durchgeführt werden konnten (Bauabschnitt 1-3). Somit waren immer nur die Räume, welche an einem Treppenhaus lagen, betroffen und in den anderen Aufgängen konnte gefahrlos gearbeitet werden. Der Schutt wurde mittels Schuttrutsche nach unten befördert, wo der Schutthaufen durchgehend bewässert wurde, damit keine Staubentwicklung entstand. Der Schutthaufen wurde extra auf der gegenüberliegenden Seite von Container und Anlieferung positioniert und abgesperrt, damit hier keine weiteren Belastungen oder Einschränkungen entstehen.

Detailaufnahme eines Stücks des Terrazobodens und zwei Treppenstufen mit Stufenprofilen.
Bauzeitliche Bodenfliesen wurden erhalten. Der Terrazzoboden des Treppenhauses wurde aufgearbeitet oder erneuert und um Stufenprofile ergänzt.
Bild: cubus plan gmbh

Material- und ressourcenschonender Umgang mit dem Bestand

Aufgrund des Denkmalschutzes und der einst verwendeten Materialien war die Materialauswahl für die Sanierung begrenzt. Wo es möglich war, wurden Energie und Ressourcen geschont – etwa durch die Verwendung von zementarmem historischen Fassaden-Oberputz und Trockenestrichsystemen. Einige Bestandselemente, wie z. B. tragende Bauteile, wurden komplett erhalten, andere wie der Dachstuhl wurde im geringen Umfang ertüchtigt und wieder genutzt. Die historischen Farbtöne der Wände, Türen und Treppen wurden gemäß einem restauratorischen Gutachten im Außen und Innen des Gebäudes wieder eingesetzt.

Blick nach unten in das Treppenhaus, sodass die Treppen mit Stufenbelag, die Wandgestaltung des Treppenflurs und die Terazzofliesen zu sehen sind.
Historische Farbtöne der Wände, Türen und Treppen im Mannschaftsgebäude Wünsdorf
Bild: cubus plan gmbh

Wiederverwendete Fußbodenelemente und Mauerwerkssteine

Das in den Wohnungen verlegte Holzparkett aus rustikalem Eichenholz und mit einer hohen Strapazierfähigkeit schont mit einer Nutzschicht von 2,7 mm die Ressourcen und sorgt für eine effiziente Erwärmung der Räumlichkeiten. Alte Holzdielen wurden verschenkt und so in den Materialkreislauf zurückgegeben. Mauerwerksteine aus Abbruch der inneren Wände wurden gesäubert und an anderer Stelle wieder eingemauert.

Detailaufnahme eines vorgesetzten Haustürbereichs mit eigenem Dach.
Alte Kämpfer an den Haustüren wurden ebenfalls erhalten. Bossierungen (überstehende, herausstehende Elemente) sind mit Glattputz nachgestellt.
Bild: cubus plan gmbh

Herstellung des historischen Außenputzes

Die schon erwähnte ursprüngliche Struktur und Farbe des Außenputzes wurde mittels einer speziellen Technik im Putzbewurf – denkmalgerecht mit einer 1,5-cm-Körnung – wiederhergestellt. Dafür wurde erst an einer Musterfläche probiert, die dem Denkmalamt zur Prüfung vorgelegt wurde. Dieses lehnte zunächst den Putz wegen des hohen Zementanteils ab. Es hat etliche Versuche und mehrere Monate gedauert, bis der Putz akzeptiert wurde.

Detailaufnahme einer Putzfläche.
Historischer Außenputz
Bild: cubus plan gmbh

Auch das Aufbringen des Putzes bis zu einer Höhe von 13 m war etwas aufwendiger, da die Putzmasse mit einem Förderschlauch von der Pumpe bis zu dieser Höhe befördert werden musste. Parameter wie Druck, Beförderungsmenge, Mischverhältnis etc. wurden vom Hersteller im Labor eigens ermittelt und auf der Baustelle gemeinsam mit der ausführenden Firma fein eingestellt und optimiert. Eine große Herausforderung bestand darin, die Putzoberfläche vollflächig mit gleichmäßigem Abstand der Düsen- und Auftragswinkel auszuführen, da die nachträgliche Behandlung hier nicht möglich war.

Für die Wiederherstellung der Ornamente und Profilierungen wurden spezielle Schablonen verwendet, die sorgfältig nach historischem Vorbild erstellt wurden.

Detailaufnahme einer Fassade, an der historische Ornamente angebracht werden.
Wiederherstellung der historischen Ornamente
Bild: cubus plan gmbh

Dachertüchtigung

Die Dachsanierung erfolgte als Biberschwanz-Kronendeckung. Die naturroten Biberschwanzziegeln gelten als besonders langlebig, waren aber – bedingt durch die Coronapandemie und den Krieg in der Ukraine – nicht zum geplanten Zeit- und Kostenrahmen verfügbar, was für die Umsetzung der Dacharbeiten eine weitere Herausforderung darstellte. Zudem erforderte das Dachdecken mit einer eingebundenen Kehle – wie im historischen Vorbild – eine besondere Expertise des ausführenden Dachdecker-Unternehmens, da diese großflächig umgesetzt werden mussten. Ortgangziegelsteine durften nicht eingesetzt werden, Dachflächenabschlüsse wurden gemäß Bestand mit geschnittenen Dachziegeln ausgeführt.

Detailaufnahme eine Dachstücks mit roten Ziegeln.
Naturrote Biberschwanzziegel auf dem Dach
Bild: cubus plan gmbh

Vorgehängte statt gestützter Balkone

An der Rückfassade, der Ostseite des Gebäudes, wurden Balkone vorgehängt statt gestützt. Damit sollen u. a. ein möglichst geringer Eingriff in die Fassadenansicht erfolgen und Ressourcen durch das filigrane Tragwerk mittels Auflagerkonsolen und Rückverankerung eingespart werden.

Rückseite des sanierten Gebäudes mit Balkonen.
Angehängte Balkone an der Ostseite des Mannschaftsgebäudes Wiederherstellung der historischen Ornamente Die
Bild: cubus plan gmbh

 

Zulassung „Kleinesche Decke“

Eine Hürde stellte auch die brandschutztechnische Zulassung der Decke dar, die nach dem Vorbild der sogenannten „Kleineschen Decke“ im Gebäude verbaut war. Diese Stahlsteindecken (auch Steineisendecken genannt) wurden früher im Wohnungsbau errichtet.

Die „Kleinesche Decke“ gehörte zu den zahlreichen Massivdecken des 19. Jahrhunderts (dazu zählt u. a. auch die „Preußische Kappe“ als Gewölbedecke), die sich hinsichtlich des jeweiligen Deckenaufbaus und seiner Tragwirkung unterschieden. Die Vielzahl der Konstruktionsprinzipien sowie die zum Teil historischen und regionalen Unterschiede erschweren eine brandschutztechnisch einheitliche Beurteilung von Massivdecken im Bestand, da oft Erfahrungen zum spezifischen Verhalten der vorhandenen Materialien, ihrem Zusammenwirken und der tatsächlich vorhandenen Leistungsfähigkeit unter Brandeinwirkung fehlen. Aus diesem Grund erwies sich die brandschutztechnische Zulassung der verbauten Decken bei der Sanierung der Mannschaftshäuser als problematisch – denn die hier vorgefundene „Ziegelstahl“-Kombination war bisher nicht zugelassen. Um eine Freigabe dafür zu erhalten, musste von unten zusätzlich eine F90 vollflächig als Brandschutzdecke bekleidet werden. Dadurch wurde die Einhangdecke brandschutztechnisch nicht mehr berücksichtigt.
 

Energetische Sanierung

Um das Gebäude energetisch auf den neuesten Stand zu bringen, wurden die Fenster in den Wohnbereichen (Holz-Isolier-Fenster) nach Denkmalschutzvorgaben mit 2-fach-Isolierverglasung 4/16/4 LE (Ug = 1,1) erneuert und zahlreiche Maßnahmen zur Dämmung und nachhaltigen Wärmeversorgung durchgeführt.

Dämm-Maßnahmen

Dazu gehörten die Dämmung der Gebäudehülle in Form einer Innen- und Außendämmung der Mansarde sowie die Dämmung der obersten und untersten Geschossdecke. Prämisse war dabei, so wenig wie möglich in den Bestand einzugreifen. So wurde z. B. im Mansardengeschoss mit Innen- und Außendämmung gearbeitet, um die Dachkubatur möglichst wenig zu verändern. Die unterste Geschossdecke (Kellerdeckendämmung) wurde mit einem speziellen, 8-cm-dicken Dämmputz versehen, der zugleich als Brandschutz, Wärmedämmung und Schallschutz fungiert. Auf die Dämmung weiterer Teile des Gebäudes mit mehr als 50 cm Wanddicke wurde nach sorgfältiger Abwägung unterschiedlicher Aspekte verzichtet.

Wärmeversorgung

Die Wärmeversorgung im gesamten Gebäude wird regenerativ über eine Hackschnitzelanlage gesichert, die im neuen Heizhaus (ehemalige Reithalle) auf dem Gelände steht. Das eigene Gebäudenetz (Nahwärmenetz) ist ausgelegt, um die Gebäude des Quartiers mit Nahwärme und Warmwasser zu versorgen. Die Wärme wird in „4 x 15.000 l“-Pufferspeichern gespeichert und über ein verzweigtes Rohrleitungssystem – das Nahwärmenetz – unterirdisch transportiert. Jedes Gebäude erhält eine Übergabestation sowie Wärmetauscher. Über Steigestränge erfolgt die Wärmeverteilung zu den einzelnen Wohnungen, in denen sich jeweils eine Wohnungsstation befindet. Von dieser aus erfolgt die Wärmeversorgung über eine effiziente Fußbodenheizung. Das abgekühlte Wasser fließt über den Rücklauf zurück zur Heizzentrale. Durch die neu geschaffene Wärmenetzinfrastruktur entfallen kleinteilige Einzellösungen bei den jeweiligen Gebäuden.

Leeres Zimmer mit zwei alten Fenstern ohne Wandputz und Fußbodenbelag und Zimmer mit weißer Wand und neuem Parkettboden. Das linke Fenster wurde zur Balkontür gemacht, im Hintergrund ist ein Balkon zu sehen.
Zimmer vor und nach der Sanierung
Bild: cubus plan gmbh

 

Ausblick

Das zweite Mannschaftsgebäude (INFA3) ist ab Herbst 2024 bezugsfertig, wie auch das Stabshaus (INFA4). Ebenfalls fertiggestellt ist auch das Heizhaus (INFA15). Es erwärmt bereits die Wohngebäude. Das ehemalige Wachhaus (INFA8) befindet sich derzeit im Umbau, aktuell wird der Dachstuhl ertüchtigt.
 

Projektdaten

Projektumfang:
Sanierung, Umnutzung und Umbau der denkmalgeschützten Gebäude der Infanterieschießschule Wünsdorf zu Wohnungen (Mannschaftsgebäude 1 & 2)


Bauherrin:
Baltic Memorial OHG 


Bauplanung:
cubus plan gmbh 


Bauausführung:
Werk II Raumgestaltung GmbH
 

Autoren

Janina Fago

cubus plan gmbh

Anke Templiner

Redaktion BauPortal

Ausgabe

BauPortal 4|2024